UNITY ML107205 bathroom mortice lock is suitable for the bathroom door with deadbolt locking privacy. What is more, emergency unlocking is provided by the coin release slot.

Specifications and Features
– ML107205 bathroom mortice lock has a modular case across functions for rapid door prepping and installation
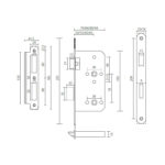
– 72mm centers, backset in 50/55/60/65mm
– 8mm follower with spindle gripping function
– ML107205 bathroom privacy lockset has a reversible latch bolt in solid stainless steel
– Double throw deadbolt in solid stainless steel with 20mm projection
– Suitable for sprung and most un-sprung lever furniture
– Stainless steel faceplate and strike in square and radius version (radius version improves door prep efficiency with machine routing)
– Compatible with bolt through furniture and escutcheons of 38mm centers
EN12209:2003 Classification
| 3 | X | 8 | 1 | 0 | G | 3 | B | C | 2 | 0 |
Illustration


Forend and Strike Finishes
![]() Satin | The matching finish on latch bolt and deadbolt *Other finishes available upon request |
Trim Options:

Lever Options
Suitable with any UNITY lever design
* Please refer to UNITY Lever Handle catalog for more detail on Lever and Trim options
About UNITY Door Mortice Locks
UNITY manufacture and supply a comprehensive range of mortise lock, mortice latch, and related door lock hardware designed and made in China. The door lock items cover from mortise locks and latches, tubular latch locks, magnetic door locks, narrow mortice locks, to compact mortice locks, and lever mortice locks.
>> Full Catalog Download
>> Quick Inquiry and Quote
UNITY Hardware Ltd. Logo-professional architectural door hardware manufacturer 
















